
Public Housing.
Skills.
Site Analysis
User Analysis
Authority Compliances (DC, BP)
Architecture Presentation
Tools.
Autodesk Revit'
Microsoft PowerPoint
Pen & Paper
Period.
Academic Year 2 Semester 1 (May - Aug 2021)
Category.
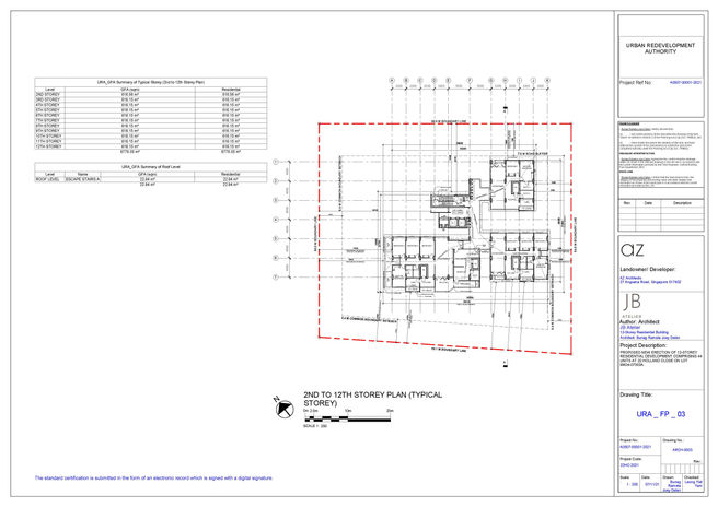
Residential (12-Storey Public Housing)
Ageing-in-place independently with the support of an intergenerational community.
Site: 22 Holland Close, Singapore 270022
Area: 3068m²
Permissible GFA: 8590.40m²
Building Height: 52.22m
Client: Ageing population
Site Analysis | A predominant ageing population community
A housing for the Ageing Population
The project aims to allow the ageing population to age-in-place independently and with the support of the intergenetational community through the residential development's unit type and layout.
Unit type per storey:
i. 1 unit of Dual key apartment (4Bedroom + 1 Studio Unit) | Multi-generational housing
ii. 1 unit of 4 bedroom apartment | Multi-Generational housing
iii. 1 unit of 2-Room Flexi Flat (HDB Initiative) | Elderly Couples

Development Control(DC) Submission | Jul 2021
Building Plan(BP) Submission | Aug 2021


























































